Начало
За Комплекса
Апартаменти
Гаражи
Строителство
Галерия
Контакти
Назад
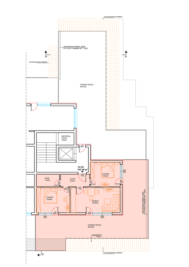
Избери апартамент
Избери ап.
ЕТАЖ
9
Статус на продажбата
Ап. с 2 спални
34
Продаден